GRIDEX T

MATS
|
PRESENTATION |
|
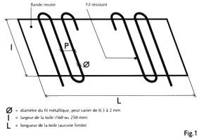
| This technology enables to propose Power Resistors with
high Resistance values (up to several hundred ohms). Moreover, these resistors are particularly well adapted to applications requiring high voltages (continuous and transitory). ____________ THE RESISTIVE WIRE ____________ It is the woof of the mat. The wire diameter can vary from 0.3 to 2mm.Various alloys are available as standards (from Konstantan which has a zero temperature coefficient, to stainless; steel type alloy or iron-chrome-aluminum). The P distance (Fig 1) varies accordingly to the wires nature and diameter, and is usually between 1 and 5 mm. ____________ THE CHAIN WIRE ____________ It has to maintain the resistive wire as well as to keep an optimum coefficient of thermal exchange. A E class fiberglass is proposed as a standard. It presents the following advantages: high temperature withstanding : above 300°C in continuous ratings above 450'C for short time ratings low coefficient of linear thermal dilatation. The mats have a low length variation according to temperature which makes the fixation simple. excellent hot mechanical tensile stress resistance, strong resistance to pollution (except fluorine pollution). A wide range of materials (cotton, kevlar, silica fiber) can be proposed for specific applications. ____________ DIMENSION AND DESIGN ____________ The weaving process provides a
large flexibility in the choice of the L and 1 dimensions. |
|
![]() |
![]() |
|
APPLICATIONS |
|
|
|